Turbo Air Tsf 23Sd Page 3

Workshop Manuals
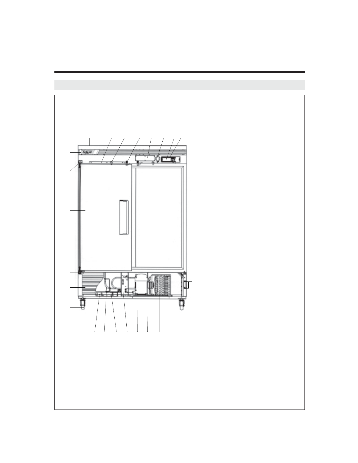
1-1. FRONT VIEW
1. FEATURE CHART
1 TOP GRILLE PANEL
2 TOP GRILLE
3 TOP GRILLE FIXTURE
4 DOOR SWITCH
5 DOOR LOCK
6 MAIN PCB
7 TRANSFORMER
8 DISPLAY PCB
9
CONTROL BOARD HOUSING
10 BRAND LOGO
11
DOOR HINGE TOP ASSEMBLY
12 DOOR HINGE SPRING
13 DOOR ASSEMBLY
14 DOOR HANDLE
15
DOOR HINGE BOTTOM ASSEMBLY
16
BOTTOM GRILLE ASSEMBLY
17 CASTER
18 DRAIN PAN
19 SUCTION PIPE
20 CAPILLARY TUBE
21 ELECTRICAL BOX
22 COMPRESSOR
23
CONDENSER FAN MOTOR
24 CONDENSER COIL
25 GRILLE FIXTURE
26
MULLION (CENTER POST)
27 MULLION HEATER
28 FRAME HEATER
29 FRAME COVER
1
0
q
k
l
h
g
w
e
r
t
y
u
io pasdf
23 4 56 789
j

Contents Summary of Turbo Air Tsf 23Sd

  • Page 1CAUTION! PLEASE KEEP POWER SWITCH ON BEFORE OPERATING THIS EQUIPMENT Turbo Air Speed up the Pace of Innovation Commercial Refrigerator & Freezer Service Manual Please read this manual completely before attempting to install or operate this equipment! SOLID DOOR TSR-23SD* TSF-23SD TSR-35SD TSF-35SD T
  • Page 2TABLE OF CONTENTS 1. FEATURE CHART 1-1. FRONT VIEW 1-2. SIDE VIEW 2. WIRING DIAGRAM 2-1. REFRIGERATOR (1DOOR) : TSR-23SD 2-2. FREEZER (1DOOR) : TSF-23SD 2-3. REFRIGERATOR (2DOOR) : TSR-49SD 2-4. FREEZER (2DOOR) : TSF-49SD 2-5. REFRIGERATOR (3DOOR) : TSR-72SD 2-6. FREEZER (3DOOR) : TSF-72SD 3. PART D
  • Page 31. FEATURE CHART 1-1. FRONT VIEW 1 2 3 4 5 6 7 89 1 TOP GRILLE PANEL 0 2 TOP GRILLE 3 TOP GRILLE FIXTURE q 4 DOOR SWITCH 5 DOOR LOCK 6 MAIN PCB w 7 TRANSFORMER 8 DISPLAY PCB 9 CONTROL BOARD HOUSING e 10 BRAND LOGO 11 DOOR HINGE TOP ASSEMBLY r k 12 DOOR HINGE SPRING 13 DOOR ASSEMBLY j l 14 DOOR HANDL
  • Page 4FEATURE CHART 1-2. SIDE VIEW l ; z x c v b n 29 DOOR BUMPER m 30 DOOR GASKET , 31 LAMP BULB 32 LAMP SOCKET ! @ # . 33 EVAPORATOR FAN $ / MOTOR BLADE 34 EVAPORATOR FAN MOTOR % 35 EVAPORATOR COIL 36 SUCTION PIPE 37 EVAPORATOR DRAIN PAN 38 EVAPORATOR DRAIN ELBOW 39 DRAIN HOSE 40 SHELF STANDARD 41 LAMP
  • Page 52. WIRING DIAGRAM 2-1. TSR-23SD WIRING DIAGRAM 2-2. TSF-23SD WIRING DIAGRAM
  • Page 6WIRING DIAGRAM 2-3. TSR-49SD WIRING DIAGRAM 2-4. TSF-49SD WIRING DIAGRAM
  • Page 7WIRING DIAGRAM 2-5. TSR-72SD WIRING DIAGRAM 2-6. TSF-72SD WIRING DIAGRAM
  • Page 83. PART DETAILS 3-1. TOP GRILLE Door Lock, Switch Door Lock Door Switch Transformer, Main P.C.B Transformer Harness Main PCB 3-2. Refrigeration Compartment Cycle Assembly Condenser Fan Motor Assembly Condenser Coil Shroud Suction Pipe Condenser Coil Compressor Condenser Dryer Condenser Pipe
  • Page 9PART DETAILS Drain Pan Assembly Drain Wicking Bar Drain Pan Drain Wicking Pads Condenser Fan Motor Assembly Condenser Fan Motor Bracket Condenser Fan Motor Blade 3-3. Electrical Box Power Bushing Power Relay (Comp. Relay)
  • Page 10PART DETAILS 3-4. Door Gasket Gasket 3-5. Cooling Compartment Freezer Duct & Refrigerator Duct (TSR-49SD, TSF-49SD, TSR-72SD, TSF-72SD Type) Duct (A) Evaporator Fan Motor Guard Duct (B) Freezer Evaporator, Fan (TSF-49SD, TSF-72SD) Evaporator Fan Motor Blade Heater Connectors & Sensor Connectors Lamp
  • Page 11PART DETAILS Freezer Duct & Refrigerator Duct (TSR-23SD, TSF-23SD Type) Evaporator Fan Motor Guard Duct (A) Duct (B) Freezer Evaporator, Fan (TSF-23SD) Lamp & Fan Motor Connectors Evaporator Fan Motor Blade Evaporator Heater Connectors & Thermal Sensor Connectors Evaporator Evaporator Coil Heater F-
  • Page 124. MAIN COMPONENTS 4-1. COMPRESSOR Model TSR-23SD TSR-49SD TSF-23SD TSF-49SD TSR-72SD TSF-72SD Refrigerant R-134a R-404a R-134a R-404a Voltage 115V / 60Hz 208/230 Comp. Model HBL27YE-1 SK6A1C-H2Y AEA2411ZXA AJA2425ZXA AKA4476YXA CAJ2446Z Part code 3952127G10 3020014540 30200L0100 30200L0200 30200A47
  • Page 13MAIN COMPONENTS 4-5. EVA FAN MOTOR Model TSR-23SD TSR-49SD TSF-23SD TSF-49SD TSR-72SD TSF-72SD Voltage 115V / 60Hz Motor Model IS4420DWSN-2A Part code 3963328120 4-6. CONDENSOR FAN MOTOR Model TSR-23SD TSR-49SD TSF-23SD TSF-49SD TSR-72SD TSF-72SD Voltage 115V / 60Hz 220V/60Hz Motor Model IS4420DWSG-
  • Page 14
  • Page 15
  • Page 16
  • Page 17
  • Page 18
  • Page 19
  • Page 20
  • Page 21
  • Page 226. PART-LIST OF SOLID DOOR MODEL Model Part name Code Material Description R-23S R-49S F-23S F-49S R-72S F-72S Caster CASTER 30265L0200 TP5040-22-HDP 2 2 2 2 3 3 CASTER BRAKE 30265L0100 TP5040-22-HDP-TLB 2 2 2 2 3 3 Compressor COMPRESSOR RUN CAPACITOR 400EL15130 230V/10µF 1 COMPRESSOR START CAPACITO
  • Page 23PART-LIST OF SOLID DOOR MODEL Model Part name Code Material Description R-23S R-49S F-23S F-49S R-72S F-72S CAPILLARY TUBE (A) 30244Q1000 C1220T L2263 IDø3.56 1 1 CAPILLARY TUBE (B) 30244Q1100 C1220T L3505 IDø2.0 1 CONDENSER DRYER 30268L0300 C1220T XH-9 50g ø3.1 1 1 CONDENSER DRYER 30268L0400 C1220T
  • Page 24PART-LIST OF SOLID DOOR MODEL Model Part name Code Material Description R-23S R-49S F-23S F-49S R-72S F-72S DRAIN PAN 30211J0103 HIPS 1 1 1 1 DRAIN WICKING BAR 30230J0700 PVC-H 1 1 1 1 DRAIN WICKING BAR 30230L0100 PVC-H 1 1 DRAIN WICKING PADS 30245L1000 PULP T2.5 5 5 DRAIN WICKING PADS 30245A0700 PU
  • Page 25PART-LIST OF SOLID DOOR MODEL Model Part name Code Material Description R-23S R-49S F-23S F-49S R-72S F-72S DUCT (A) 30269L0304 SUS 304 1 1 DUCT (A) 30269L0404 SUS 304 1 1 DUCT (A) 30269Q0500 SUS 304 1 1 DUCT (B) 30269L0507 SUS 304 1 1 DUCT (B) 30269L0606 SUS 304 1 1 DUCT (B) 30269Q0400 SUS 304 1 1
  • Page 26PART-LIST OF SOLID DOOR MODEL Model Part name Code Material Description R-23S R-49S F-23S F-49S R-72S F-72S BOTTOM GRILLE ASSEMBLY 30224L1400 STS304-HL 1 1 BOTTOM GRILLE ASSEMBLY 30200Q4100 STS304-HL 1 1 Lamp LAMP SHIELD 30214L3200 PP MILKY 1 1 1 1 2 2 LAMP HARNESS 30227L0900 1 1 1 1 2 2 LAMP BULB 3
  • Page 277. REPLACEMENT OF MAIN COMPONENTS 7-1. TOP GRILLE PARTS - MAIN PCB or TRANSFORMER - DISPLAY PCB - DOOR LOCK or POWER SWITCH (ROCKER SWITCH) - DOOR SWITCH A. Unscrew the screw located both sides of top grille panel.
  • Page 28REPLACEMENT OF MAIN COMPONENTS B. Unscrew the screws located on top of top grille panel.
  • Page 29REPLACEMENT OF MAIN COMPONENTS C. Unscrew the screws located on bottom of top grille panel. * Caution : When unscrewing, hold the top grille panel. Falling down top grille may cause bruise. D. Place the top grille panel on the top of the cabinet. E. You can replace PCB, Transformer.
  • Page 30REPLACEMENT OF MAIN COMPONENTS F. Pull out the harness located back of top grille panel. You can separate top grille panel. You can replace power switch(rocker switch), door switches(lamp switch) and control board housing. G. To re-assemble, do reversed in order.
  • Page 31REPLACEMENT OF MAIN COMPONENTS 7-2. REPLACING DOOR A. Disassemble top grille panel as described section 7-1 A.B.C.D. B. Remove Bottom Grille by unscrewing the four screws located on each side of the Bottom Grille. C. Open the electrical box. Then uncap the door heater wire. (Freezer model only)
  • Page 32REPLACEMENT OF MAIN COMPONENTS D. The figure of the disassembled top grille E. Unscrew the hinge. panel. F. Unscrew the last screw with pushing the G. After unscrewing, the hinge will rotate hinge. about 90˚(CCW), of itself.
  • Page 33REPLACEMENT OF MAIN COMPONENTS H. Lift the door and pull out the door heaterʼs lead wire. I. Replace the door with the new one. J. Ready the hinge as below. It is important to set initial position (angle).
  • Page 34REPLACEMENT OF MAIN COMPONENTS K. Initial position of the hinge must be as below. L. Turn the hinge 90˚ CW. This turning causes torsion strength of the bar spring that shuts the door(s) automatically. M. Screw the hinge with pushing it. After installation of the door(s), assemble the top grille pane
  • Page 35REPLACEMENT OF MAIN COMPONENTS 7-3. REFRIGERATION COMPARTMENTʼS PARTS A. Disassemble lamp shield. - LAMP BULB or LAMP SHIELD - EVAPORATOR FAN MOTOR - F/D SENSOR or R/D SENSOR - EVAPORATOR DEFROST HEATER - EVAPORATOR COIL B. Disassemble Duct (A). C. Pull out the lamp harness.
  • Page 36REPLACEMENT OF MAIN COMPONENTS D. Disassembe duct (B). E. Pull-out the evaporator drain pan heaterʼs leadwire. F. Figure of disassembled refrigeration compartments. In this situation, you can replace fan motor, F/D-sensor, Evaporator coil, ETC.
  • Page 37REPLACEMENT OF MAIN COMPONENTS G. Replacing evaporator fan motor F-1. Pull out the fan motorʼs connector. F-2. Unscrew the four screws which located on bottom of fan motor. H. Replacing F/D-Sensor or R/D-Sensor H-1. F-Sensor of Freezer Unscrew as illustrated below and pull-out the F-Sensor from the
  • Page 38REPLACEMENT OF MAIN COMPONENTS H-2. D-Sensor of Freezer (Evaporator Defrost Sensor) Disassemble the D-Sensor from evaporatorʼs end plate. D-Sensor (Blue Color) H-3. R-Sensor of Refrigerator Unscrew as illustrated below and pull-out the R-Sensor from the cover. R-Sensor R-Sensor (White Color) (White
  • Page 39REPLACEMENT OF MAIN COMPONENTS H-4. D-Sensor of Refrigerator Remove the absorber pad at the end of thermo-pipe and pull-out the D-Sensor. D-Sensor Thermo-Pipe (Blue Color) H-5. F/D Sensor or R/D Sensor After unplug each sensor, pull-out the sensorʼs lead wire. D-Sensor D-Sensor F-Sensor R-Sensor F/D
  • Page 40REPLACEMENT OF MAIN COMPONENTS REPLACING EVAPORATOR DEFROST HEATER (FREEZER ONLY) A. After disassembling the duct(A) and the B. Pull out the pins from the bottom of the duct(B), get ready as below for replacing evaporator using the nipper, etc. the evaporator defrost heater. H. Split the hooks of th
  • Page 41REPLACEMENT OF MAIN COMPONENTS D. After removing all pins, disconnect the connectors from the thermal fuse and the main E. Take apart the evaporator defrost heater from the evaporator.
  • Page 42REPLACEMENT OF MAIN COMPONENTS F. Install the new evaporator defrost heater in original position. G. Pat the evaporator defrost heater with the soft hammer. H. Pinch the hooks of the evaporator.
  • Page 43REPLACEMENT OF MAIN COMPONENTS I . Assemble the pins in original positions. J. Connect the connectors of the evaporator defrost heater to them of the thermal fuse * NOTE Why is always 115 voltage detected between connectors of the evaporator defrost heater in the main harness? The SNUBBER(located Ma
  • Page 44REPLACEMENT OF MAIN COMPONENTS 7-4. CONDENSING UNIT - Condensing units : Compressor, Condenser Fan Motor, Condenser Coil, Condenser Dryer.... - Others : Compressor Power Cord (Relay harness), Main Power Cord, Electrical Box, ETC. A. Disassemble Bottom Grille as described section 7-2. B. B. Unscrew t
  • Page 45REPLACEMENT OF MAIN COMPONENTS D. Pull-out the condensing unit.
  • Page 46REPLACEMENT OF MAIN COMPONENTS 7-5. REPLACING CABINET FRAME HEATER (and/or) MULLION HEATER A. Insert the and edge of ʻ–ʼtype screw B. Take apart the frame cover from the driver into the gap between the frame frame. and the frame cover. C. Separate the frame cover by sliding the D. Do just like above
  • Page 47REPLACEMENT OF MAIN COMPONENTS E. Below picture shows the inlet of the F. Uncap connectors of the cabinet frame cabinet frame heater toward the heater. electrical box. G. Pull out the heater wire from the inlet. H. Insert the new cabinet frame heater wire to the inlet, after surrounding it along the
  • Page 48REPLACEMENT OF MAIN COMPONENTS I. Assemble the frame cover with the frame. J. Fit the end lines of the frame cover each Push and slide the frame cover toward other. corner. K. Fit the other side of the frame cover, too. L. Pat the frame cover with the soft hammer, etc.
  • Page 49REPLACEMENT OF MAIN COMPONENTS M. Do like above instructions in other parts (Left side, right side and top side).
  • Page 50REPLACEMENT OF MAIN COMPONENTS N. Unscrew the screws from the mullion. O. Take apart the mullion cover from the P. Take care for the mullion heater not to mullion. be hurt. (It does not matter, if this heater is out of order).
  • Page 51REPLACEMENT OF MAIN COMPONENTS Q. Pull out the insulator from inside. R. Uncap connectors of the mullion heater. S. Pull out the heater wire from the inlet.
  • Page 52REPLACEMENT OF MAIN COMPONENTS T. Pull out the mullion cover(SUS) from the mullion cover (ABS). U. Change the old mullion heater and V. Insert the mullion cover(SUS) into the install the new one with the gap between original pisition. wires 1.2 inch.
  • Page 53REPLACEMENT OF MAIN COMPONENTS W. Connect the heater wires with the main harness and the electrical box harness. X. Cover the caps on the connection parts and press them tightly.